Hirdetésfeladás Kapcsolat

Fővárosi és Pest megyei lakások és házak ellenőrzött forrásból
Eladó Ikerház, Dunaharaszti, Bezerédi-lakópark
#724600029
149.9 millió Ft
Alapterület 108 m2,  400 m2-es telken
Szobák száma 5 szoba
Építési mód Tégla
Állapot Új építésű
Emelet nincs megadva

További paraméterek

  • Jó közlekedéssel
  • Kertkapcsolatos
  • Otthon Start 3%-os hitellel
  • Kilátás: Udvari
  • Fűtés: Hőszivattyú
  • Bútorozottság: Bútorozatlan
  • Szintek száma: 2
  • Komfort: Dupla komfort
  • Energetika: A+
  • Internet: Optikai
  • Akadálymentesítés: Nem akadálymentesített

Részletes leírás

Hatalmas kedvezmény a 2.lakásra. Alap műszaki tartalom mellet most 149.9 millió forint! (De ne késlekedj, ez az ajánlat csak pár napig tart! ) 

ÚJÉPÍTÉSŰ, MODERN IKERHÁZ ELADÓ A BEZERÉDI LAKÓPARKBAN!
•Ajándék parkosított kert+automata öntöző rendszerrel (2025.11.30-ig történő szerződéskötés esetén)
•Várható átadás: 2026. július
Az ikerház mindkét lakóegysége teljesen önálló családi ház érzetét nyújtja. A két épületrész találkozásánál dupla hanggátló fal került kialakításra, a födémek pedig egymástól függetlenül készülnek, ezzel biztosítva a kiváló hangszigetelést és a maximális intimitást a lakók számára. 

Az ingatlan a Bezerédi lakópark családi házas, átmenő forgalomtól mentes utcájában helyezkedik el, ideális környezetben családok számára. A mindennapi élethez szükséges szolgáltatások – boltok, óvoda, iskola, orvosi rendelő, vonat- és buszmegálló – mind kényelmes, gyalogos távolságban találhatók.

A kivitelezés minden esetben prémium minőségben történik, függetlenül a választott műszaki tartalomtól. Ezek az otthonok nem sablontervek alapján készülnek, hanem kis darabszámban, egyedi tervezéssel és maximális odafigyeléssel épülnek, ahol a minőség mindig előbbre való a gyorsaságnál.

A beruházó célja, hogy minden vásárló egy valóban személyre szabott, igényes és időtálló otthont kapjon.
Referenciaingatlanok előzetes egyeztetés után Dunaharaszti több pontján is megtekinthetők.

Főbb jellemzők, műszaki adatok:

•Korszerű hőszivattyús fűtés és hűtés
•Padló, mennyezeti és fal fűtés-hűtés
•Építési mód: 30-as POROTHERM tégla
•Szigetelés: 15 cm EPS szigetelés
•Födém: monolit beton
•Tetőszerkezet: TERRÁN Zenit Resistor cserép, carbon grafit színben
•Nyílászárók: műanyag, 3 rétegű, antracit színű kívül-belül.
•Energiatakarékos A+ besorolás
•Választható burkolatok, a műszaki tartalomban meghatározott kereten belül. 
•Szerkezete vasbetonnal erősített
Prémium műszaki tartalom kérhető extra felár ellenében: 
- Napelem alapszerelése 
- Okos otthon kialakítása
- Prémium burkolatok
- Elektromos redőnyök, ablakokon szúnyoghálóval.
- Épített kerítés
- Fedett terasz
- Tároló
- Térkövezés
- Üvegkorlát

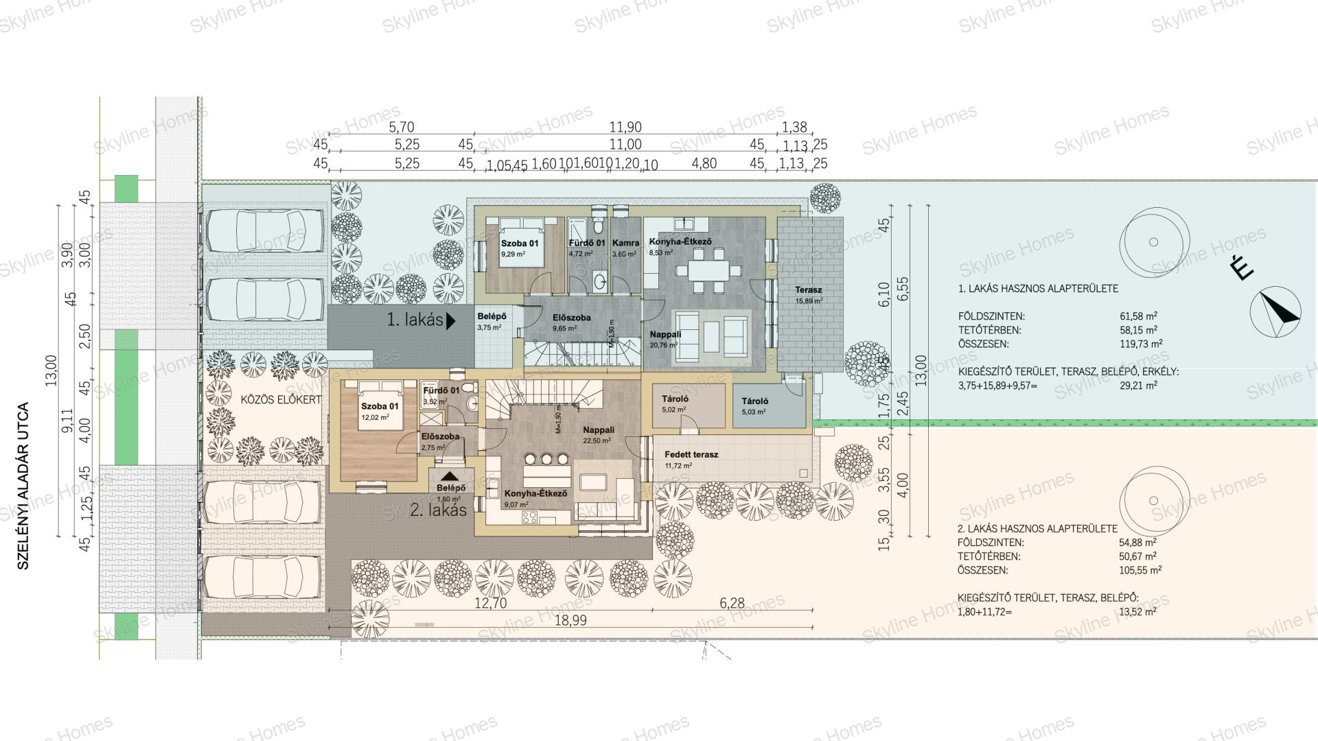
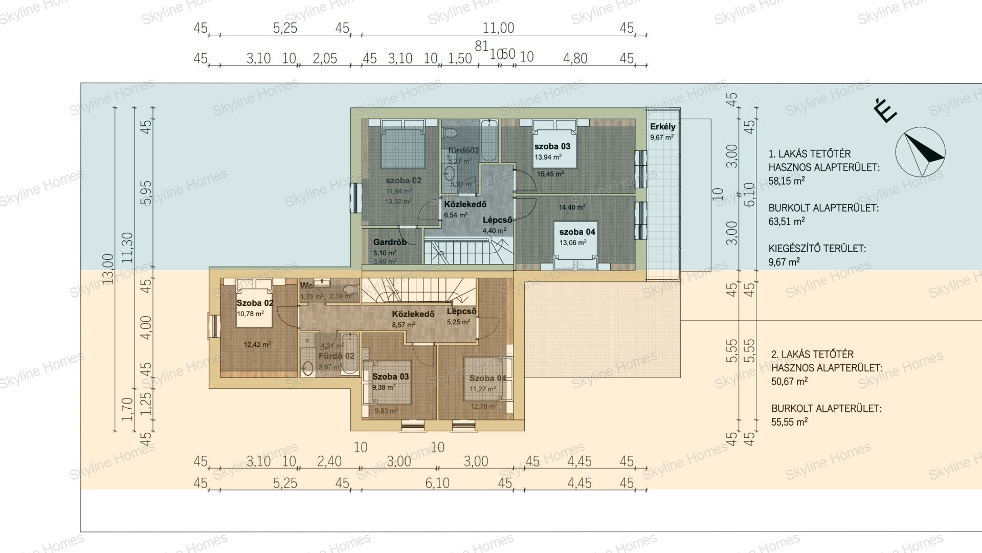
Lakás 1 – Nagyobbik házrész
Alapterület: 119.73 m²
Elosztás: 
Saját kert rész 400m²
2 fürdőszoba 
4 hálószoba
2 fürdőszoba
1 gardrób
Ár: 171 300 000 Ft

Lakás 2 – Kisebbik házrész
Alapterület: 105.55 m²
Elosztás: 
Sajtát kert rész 400m²
2 fürdőszoba 
4 hálószoba
2 fürdőszoba
Ár: 154 900 000 Ft ( Most 149.900.000 Ft AKCIÓS ÁR) 

Személyre szabott fizetési ütemezés egyeztethető a kivitelezővel!(Ákár Otthon Start Lakáshitel támogatással) 
Az építkezés magán kivitelezésben történik, így a vásárlók nem tömeges fejlesztésből, hanem egyedileg, magas minőségben megépített otthont vásárolhatnak.
A banki finanszírozás a kulcsrakész állapot elérése után lehetséges, banki hitel és támogatott konstrukciók is igénybe vehetők.

Kapcsolat

Temesvári László

Cégtulajdonos

Ossza meg a hirdetést:
FacebookGplusTwitter