Eladó Családi ház, Kiskunlacháza
#724600009
|
89.1 millió Ft
|
|
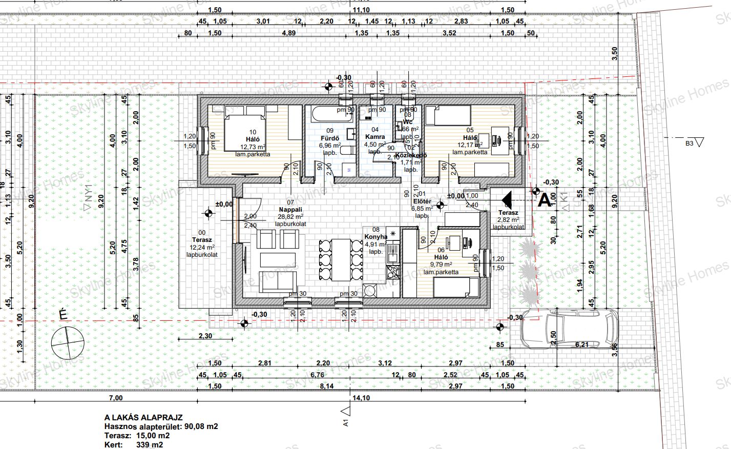
| Alapterület | 90 m2, 339 m2-es telken |
| Szobák száma | 4 szoba |
| Építési mód | Tégla |
| Állapot | Új építésű, azonnal költözhető |
| Emelet | nincs megadva |
További paraméterek
Azonnal költözhető
CSOK igényelhető
Jó közlekedéssel
Kertkapcsolatos
Otthon Start 3%-os hitellel- Kilátás: Udvari
- Fűtés: Hőszivattyú
- Szintek száma: 1
- Komfort: Dupla komfort
- Internet: Optikai
Részletes leírás
különálló családi ház – azonnal költözhető!
Kiskunlacházán eladó új, különálló családi ház – azonnal költözhető!
Csendes, központ közeli utcában eladó egy 90 m²-es, energiatakarékos, H-tarifás, új építésű családi ház, 339 m²-es telken. Az ingatlan amerikai konyhás nappalival, 3 hálószobával, 1 fürdőszobával, 2 WC-vel,kényelmes méretű terasszal és saját kerttel rendelkezik. Zárt udvari parkolás biztosított.
Főbb jellemzők:
Hőszivattyús padlófűtés
3 rétegű nyílászárók
30 cm-es tégla + 10 cm grafitos szigetelés
Kőzetgyapot födémszigetelés
Burkolatok, szaniterek beépítve
Jogosult minden elérhető támogatásra
Iskola, óvoda, SPAR, piac, gyógyszertár pár percen belül.
További infóért vagy megtekintésért hívjon bizalommal, akár hétvégén is!

